Здравствуйте! Помогите, пожалуйста, с выбором планировки 1-комнатной квартиры площадью 47,2 кв.м жил - Бобёр.ру
5:49
Europe/Moscow
сб, 11 октября
Сейчас в эфире: День перемен

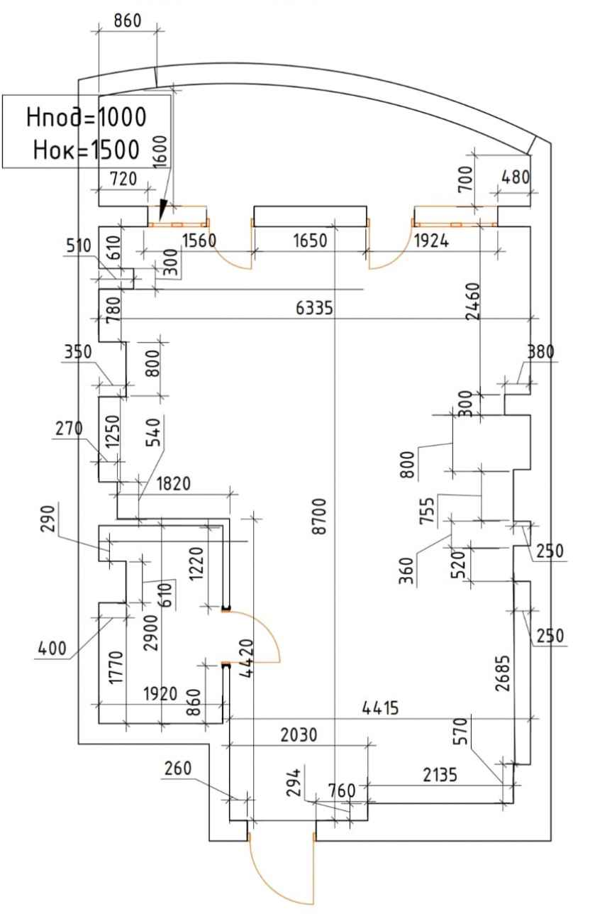
Здравствуйте! Помогите, пожалуйста, с выбором планировки 1-комнатной квартиры площадью 47,2 кв.м жилой площади. Сложность возникла из- наличия колонн разного размера. Спасибо!

Бобёр.ру
Добрый день! Возможно вам смогут помочь в программе «Идеальный ремонт». Заявку на участие можно оставить на сайте http://iremont.tv/join/
вт, 12.11.2019 - 13:45
0